Описание
Подробности
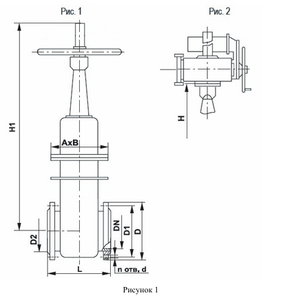
Стальная клиновая штампосварная задвижка 30с42нж предназначена для перекрытия трубопроводов, транспортирующих холодную или горячую воду, перегретый пар, а также нефтепродукты и другие жидкие и газообразные среды.
Задвижка 30с42нж рассчитаны на температуру рабочей среды до 300оС при номинальном давлении 10 атм. Управляются задвижки серии 30с42нж с помощью штурвала, что позволяет открывать или перекрывать поток рабочей среды при аварии или какой-либо нештатной ситуации на месте. Стальные клиновые задвижки 30с42нж чаще всего применяются на трубопроводах в системах отопления и водоснабжения населённых пунктов и промышленных предприятий с невысокой этажностью, а также на технологических трубопроводах.
|
Задвижка штампосварная 30с42нж представляет собой разновидность задвижек клиновых, но отличается от обычных литых задвижек типом корпуса. Изготовление штампосварных корпусов позволяет снизить стоимость задвижек, они имеют меньшую массу и строительную длину по сравнению с литыми задвижками. Все это конечно существенно упрощает монтаж задвижек и позволяет использовать данный тип арматуры в местах с ограниченным рабочим пространством. Однако, есть и недостатки – особенности конструкции корпуса не позволяют использовать штампосварные задвижки на давления, превышающие значения PN 2,5 МПа. Внешней отличительной особенностью данного типа задвижек является наличие на корпусе ребер, выполненных для увеличения жесткости корпуса. Управление ручное через маховик. Шпиндель у задвижки выдвижной. В зависимости от условий использования задвижки могут изготавливаться с классами герметичности «А», «В», «С» или «D» по ГОСТ 9544-2005. Как и большинство задвижек, 30с42нж по умолчанию изготавливается с фланцевым присоединением. Исполнение фланцев на корпусе 1 по ГОСТ 12815-80. Под заказ возможно изготовление фланцев с любым исполнением. По спецзаказу некоторые заводы готовы изготовить задвижку с приварным соединением. Отметим основные технические характеристики: а) Материал корпуса – углеродистая сталь 3сп или сталь 20. На выбор материала корпуса влияет температура рабочей среды. При температуре до +200 град. применяется сталь 3сп, при температуре до +300 град. задвижки изготавливаются уже из стали 20. а) уплотнение – нержавеющая сталь, в) температура окружающей среды до -40 град. Климатическое исполнение умеренное, г) температура рабочей среды от -40 до +300 град., д) условное давление 1,0 МПа. Задвижки 30с42нж применяются для различных сред – вода, пар, воздух, природный газ, разнообразные жидкие и газообразные среды, неагрессивные к материалу задвижки. При размещении заказа необходимо указывать рабочую среду и температуру, т.к. это влияет на материальное исполнение корпуса, крышки и клина у задвижек, что естественным образом отражается на стоимости изделий. Установка возможна на улице, в помещении, подземная (колодезная) установка. Пространственное положение на трубопроводе – вертикальное, горизонтальное, под углом, не превышающим значение 90 град. Рекомендации при установке – при расположении изделия в наклоне под углом свыше 15 градусов необходимо устанавливать опоры под задвижку. Линейка выпускаемых диаметров от DN 150 мм до DN 300 мм. Возможно изготовление задвижки под электропривод. В данном случае маркировка будет 30с942нж. Преимуществами задвижки являются высокий класс герметичности, долгий срок службы, ремонтопригодность, возможность применения на высоких температурах. |

Характеристики
Характеристики
| Диаметр условный,мм | 500 |
|---|---|
| Давление PN (кгс/см2) | 10 (Ру) атм |
| Способ монтажа | фланец |
| Класс герметичности | B,C,D |
| Материал исполнения корпусной детали: | сталь 20Л |
| Способ изготовления основной корпусной части | штампосварная |
| Материал исполнения уплотнительных колец: | НЖ-нержавеющая сталь |
| Рабочая среда | вода,пар,газ,жидкие и газообразные неагресивные нефтепродукты |
| Температура среды, °C | 300 |
| Температура окружающей среды -°C (min): | 40 |
| Температура окружающей среды +°C (max): | 40 |
| Климатическое исполнение | У-умеренный климат |
| Категория размещения | - |
| Рабочее давление, МПа | 1,0 |
| Устройство движения шпинделя | выдвижное |
| Тип затворного механизма | клиновый |
Отзывы
Напишите ваш собственный отзыв
Оставлять отзывы могут только зарегистрированные пользователи. Пожалуйста, войдите или зарегистрируйтесь
Напишите ваш собственный отзыв
Оставлять отзывы могут только зарегистрированные пользователи. Пожалуйста, войдите или зарегистрируйтесь


